
Zillow: https://www.zillow.com/homedetails/745-Salduro-St-Wells-NV-89835/456534590_zpid/
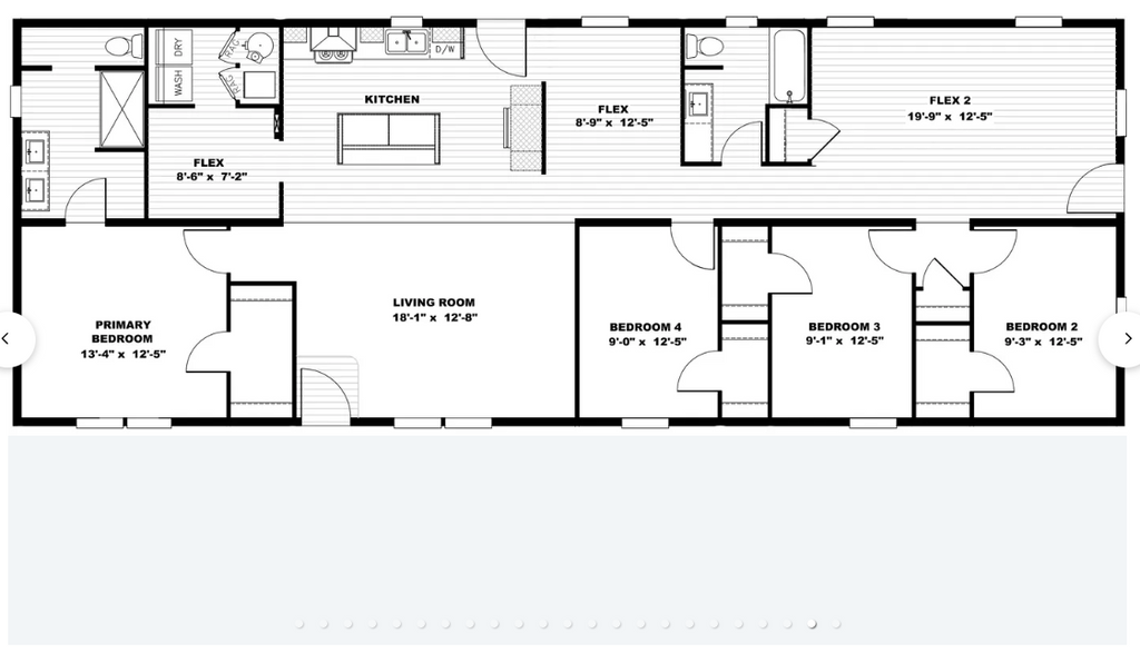
The Hey Jude by Clayton is a spacious 1,920 sq. ft. manufactured home designed with comfort, style, and functionality in mind. Perfect for growing families or those who love open living, this 4-bedroom, 3-bath home balances modern design with practical living.
Key Features
-
Open-Concept Living – A bright and airy floor plan seamlessly connects the kitchen, dining, and living areas, making it perfect for entertaining or family gatherings.
-
Spacious Kitchen – Features a large center island, abundant cabinet storage, and modern appliances designed for both everyday living and hosting.
-
Primary Suite Retreat – Includes a large bedroom, walk-in closet, and a private ensuite bath with double vanities and luxury finishes.
-
Secondary Bedrooms – Three additional bedrooms provide ample space for family, guests, or a home office.
-
Three Full Bathrooms – Convenient for larger households, reducing wait times and adding comfort.
-
Utility & Storage – A dedicated laundry/utility room offers practicality without sacrificing style.
Why Choose the Hey Jude?
-
Generous 1,920 sq. ft. floor plan with plenty of room to grow.
-
Modern farmhouse design touches create a warm, inviting atmosphere.
-
Built with Clayton’s commitment to quality, durability, and energy efficiency.
-
Ideal for family living in both urban and rural settings.
Standard Features
• 8’ Tall Flat Ceilings
• LP® SmartSide® Panel Siding with 5/50 Year Limited Warranty
• Weather Resistant House Wrap Under Siding
• Sherwin Williams Paint - Interior and Exterior
• Tape and Texture with Square Corners
• 2” x 6” Exterior Walls
• ENERGY STAR® Rated Home
• Hardwood Cabinets (Featuring 42” Tall Overheads)
• 6” Recessed LED Lighting
• Ceiling Fan Prep in Living Room & Bedrooms
• Fiberglass Tubs and Showers
• Stainless Steel Appliances (Featuring 18’ Top Freezer)
• Pfister® Faucets Throughout
(Featuring Stainless Pull Down in Kitchen)
• 36” Stainless Steel European Range Hood
• Congoleum LUX Vinyl Flooring
• Shaw® 25 oz. Stain Resistant Carpet
• Kwikset® Door Hardware (Featuring Thumblatch Front Door)
• Craftsman Style Front Door & 9 Lite Rear Door
• Architectural Shingles w/ Limited Lifetime Warranty
• ecobee® Smart Thermostat
• Carrier SmartComfort® Electric Furnace